Overview
6 Bedroom Detached House for sale in Pattison Close, Rochdale, OL12
2
6
2
Key Features:
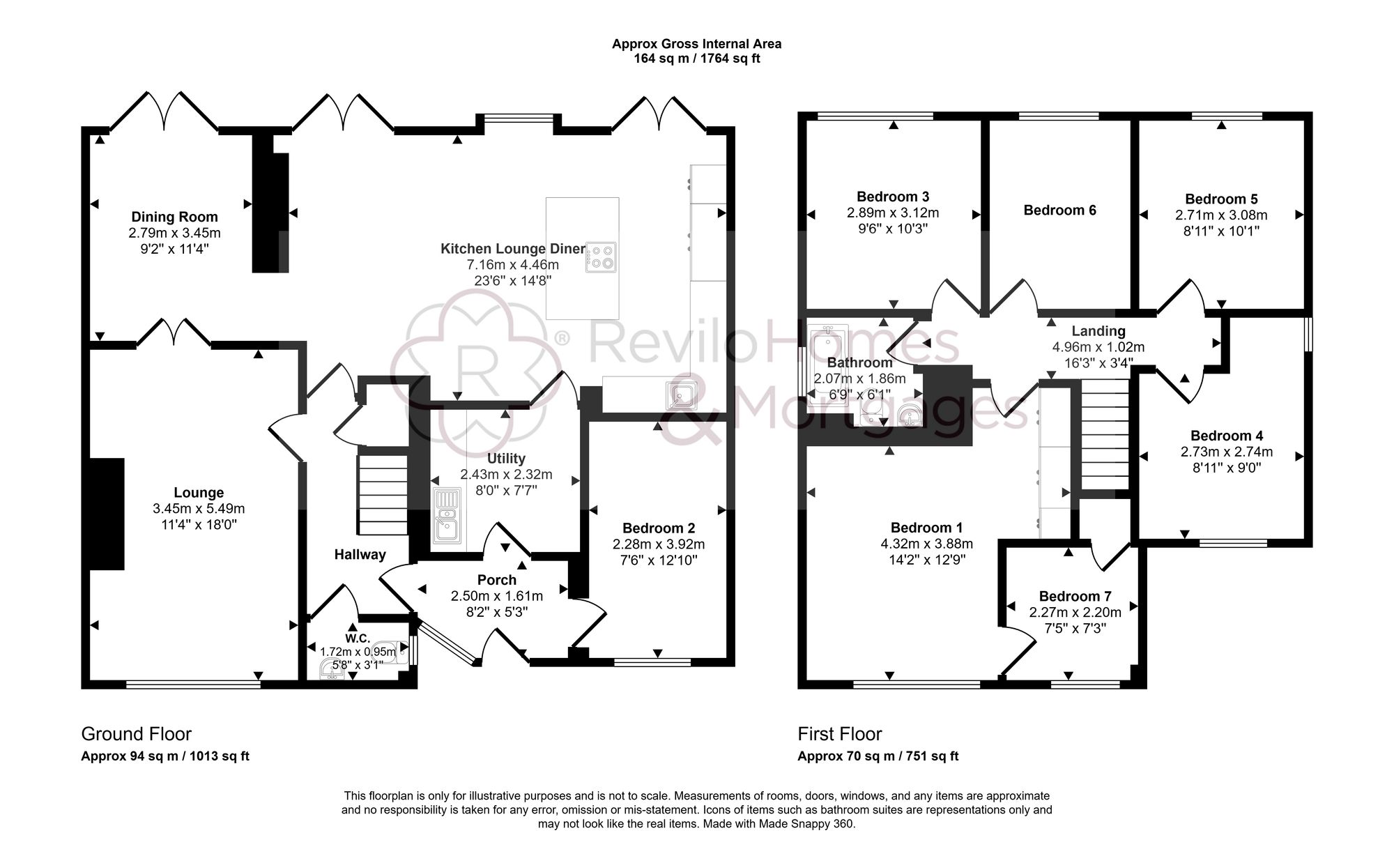
- Spacious Six Bedroom Detached Family Home
- Bright & Airy Lounge
- Modern Fitted Kitchen with Integral Appliances & Central Island
- Separate Dining Room
- Downstairs W/C
- Enclosed Private Rear Garden
- Summerhouse/Gym to Rear of Property in Excellent Condition
- Spacious Family Bathroom
- Driveway Parking
- Sought-After Residential Location
This impressive six bedroom detached family home offers generous and versatile living accommodation, ideal for growing families or those seeking ample space for entertaining. The property is presented in excellent condition throughout and is situated in a highly sought-after residential location, close to local amenities and well-regarded schools. Upon entering, you are greeted by a welcoming hallway leading to a bright and airy lounge, perfect for relaxing or gathering with friends and family. The modern fitted kitchen features integral appliances and a stylish central island, providing a contemporary space for cooking and dining. There is a separate dining room for more formal occasions...
Read more
This impressive six bedroom detached family home offers generous and versatile living accommodation, ideal for growing families or those seeking ample space for entertaining. The property is presented in excellent condition throughout and is situated in a highly sought-after residential location, close to local amenities and well-regarded schools. Upon entering, you are greeted by a welcoming hallway leading to a bright and airy lounge, perfect for relaxing or gathering with friends and family. The modern fitted kitchen features integral appliances and a stylish central island, providing a contemporary space for cooking and dining. There is a separate dining room for more formal occasions, as well as a convenient downstairs W/C. Upstairs, the spacious family bathroom is complemented by six well-proportioned bedrooms, offering flexibility for guests, home working, or hobbies.
Externally, the property boasts an enclosed private rear garden, providing a safe and tranquil environment for children and pets to play. The garden is mainly laid to lawn with well-maintained borders and a patio area, ideal for al fresco dining or summer barbeques. To the rear of the garden, a substantial summerhouse currently used as a gym is presented in excellent condition and offers a variety of potential uses, such as a home office, studio, or additional entertaining space. The property also benefits from driveway parking, ensuring convenience for multiple vehicles. Mature planting and fencing ensure privacy and a pleasant outlook, making this outside space a true extension of the home. This property combines generous indoor accommodation with outstanding outdoor features, presenting a rare opportunity in a popular location. Early viewing is highly recommended to fully appreciate all that this wonderful family home has to offer.
Read less
Important Information
- This is a Freehold property.
- This Council Tax band for this property is: E
- EPC Rating is D